Résumé
Crêperie le Cap - Restaurant inclusif à Cluny
Création d’un restaurant inclusif à Cluny
71250 Cluny
Spécificités du projet
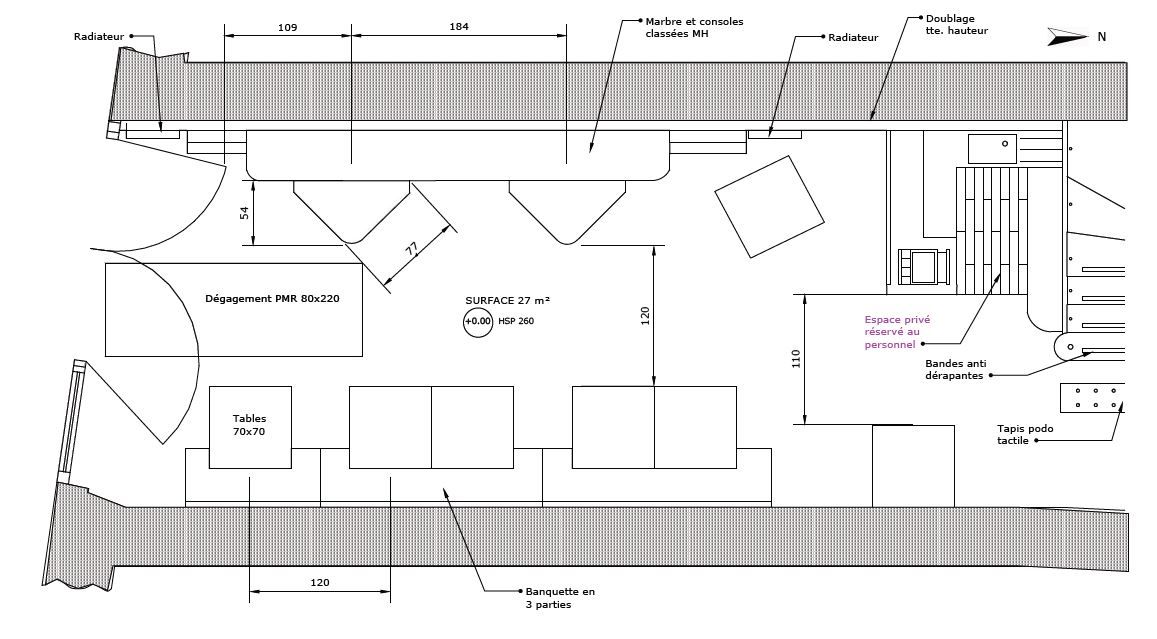
- Création d’un espace de restauration au RDC + une salle à l’étage.
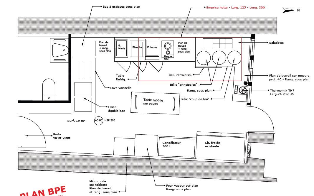
- Création d’un comptoir d’accueil et d’une cuisine professionnelle.
- Création d’un espace repos avec douche à disposition des employés.
- Mise aux normes accès PMR + toilettes.
- Mise en valeur du lieu, carreaux de ciment, murs en pierres, poutres apparentes et mobilier classé “historique” afin de restituer une atmosphère empreinte d’authenticité à l’image de la cuisine proposée.
- Favoriser la lumière naturelle du lieu et son ergonomie de circulation pour le bien être des clients.






